
Engineered by Experts, Perfected by Players
Our wall panel design is the result of true collaboration — with input from installers, facility owners, and, most importantly, the players themselves. This hands-on approach ensures every Battle Board panel meets the performance and durability demands of real-world athletic environments.
Built to Perform
Each Battle Board panel is crafted using cutting-edge materials and precise manufacturing techniques.
-
Core Material: Moisture-resistant high-density MDF with finer grain, fewer voids, and a tighter finish.
-
Surface Fusion: Layers of melamine paper and a proprietary impact coating are thermally fused under heat and pressure — eliminating the risk of delamination.
The result? Panels that are stronger, more stable, and longer lasting than traditional particle board or high-pressure laminate options.
Battle Board panels deliver unmatched performance, durability, and easy maintenance — making them ideal for racquetball, squash, handball, basketball, and multipurpose athletic facilities.

Racquetball Framing Recommendations

RACQUETBALL COURT LAYOUT
- 20’ x 40’ (6.1M x 12.25M) Between Playing Surfaces
- Finished Ceiling Height 20’ (6.1M)
- Recommended Hit Wall Framing 2” x 6” 18 ga C Stud (51mm x 152mm x 1.2mm), 12” (300mm) On-Center
- Recommended Side Wall Framing 2” x 6” 18 ga C Stud (51mm x 152mm x 1.2mm), 16” (406mm) On-Center
- Rough Opening Width Dimension (Stud to Stud) assuming 3/4” (19mm) Side Wall Panels: 241-1/2” (6134mm)
- Rough Opening Length Dimensions (No Glass Back Wall):
- Stud to Stud Assuming 1-1/8” (28.6mm) Hit Wall Panels and 3/4” (19.8mm) Back Wall Panels: 481-7/8” (12.24m)
- Rough Opening Length Dimensions (With Glass Back Wall):
- Stud to Court Side Face of Glass Assuming 1-1/8” (28.6mm) Hit Wall Panels: 481-1/8” (12221mm)
- Stud to Back of Fin Support Assuming 1-1/8” (28.6mm) Hit Wall Panels: 493-3/4” (12541mm)
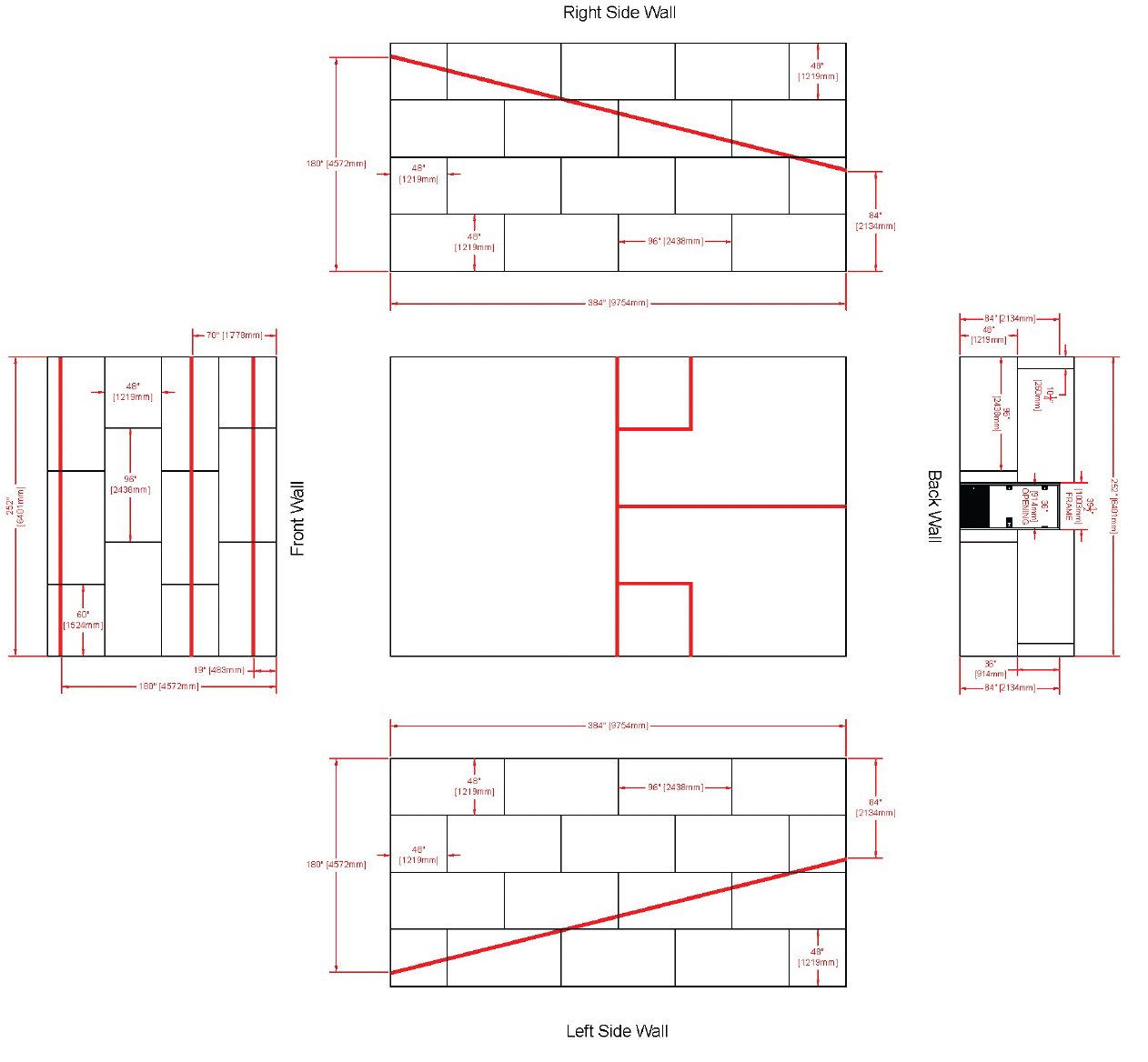
Squash Framing Recommendations

SQUASH COURT LAYOUT
- 21’ x 32’ (6.4M x 9.75M) Between Playing Surfaces
- Minimum Ceiling Height 18’ 6” (5.64M)
- Recommended Hit Wall Framing 2” x 6” 18 ga C Stud (51mm x 152mm x 1.2mm), 12” (300mm) On-Center
- Recommended Side Wall Framing 2” x 6” 18 ga C Stud (51mm x 152mm x 1.2mm), 16” (406mm) On-Center
- Rough Opening Width Dimension (Stud to Stud) assuming 3/4” (19mm) Side Wall Panels: 253-1/2” (6439mm)
- Rough Opening Width Dimension (Stud to Stud) assuming 1-1/8” (28.6mm) Side Wall Panels: 254-1/4” (6458mm)
- Rough Opening Length Dimensions (No Glass Back Wall):
- Stud to Stud Assuming 1-1/8” (28.6mm) Hit Wall Panels and 3/4” (19.8mm) Back Wall Panels: 385-7/8” (9801mm)
- Rough Opening Length Dimensions (With Glass Back Wall):
-
- Stud to Court Side Face of Glass Assuming 1-1/8” (28.6mm) Hit Wall Panels: 385-1/8” (9782 mm)
-
- Stud to Back of Fin Support Assuming 1-1/8” (28.6mm) Hit Wall Panels: 397 3/4” (10103 mm)
Environmentally Responsible
We’re committed to sustainability and strict environmental compliance.
Battle Board panels meet or exceed the following standards:
-
EPA Formaldehyde Emission Regulation, TSCA Title VI
-
Canada Formaldehyde Emissions Standard – CAN/CSA 0160-16
-
No Added Formaldehyde (NAF) Exempt – N-24-313A
-
Third-party certified: 94.4% pre-consumer recycled content
-
Type III Product Specific EPD Certified by UL Environment
-
FSC® Certified (SCS-COC/CW-00300) – FSC® Mix and Controlled Wood
-
Flame Spread Rating Class C (3)
-
Exceeds MR50 requirements
-
LEED Credits Supported: MR 4, 5, 7 and IEQ 4.4
Warranty and Care
Double Play Warranty:
Battle Board panels are backed by a 10-year warranty against delamination.
Important:
Our pre-finished court panels are engineered for indoor use and are not impervious to direct moisture, high humidity, or extreme temperature changes. To ensure optimal performance and longevity, maintain the following conditions:
-
Relative Humidity: 40%–60%
-
Temperature: 50–80°F (10–27°C)
-
Permanent HVAC systems must remain operational at all times.
Failure to maintain proper environmental conditions will void the warranty.
Exceeding Industry Standards
Through our advanced thermal lamination process, Battle Board panels exceed NEMA LD3-2001 HPL impact requirements.
-
Impact Performance: 23" drop factor without surface fracture — outperforming the NEMA HPL standard of 20".
Battle Board isn’t just built tough — it’s built to set the standard.
Battle Board Configuration Options
Don't forget to check out our Battle Coat product.
Request More Information
Learn more about other DOUBLEPLAY products















